Haus der Frankfurter Jugendkirchenmusik, Frankfurt am Main, 2025

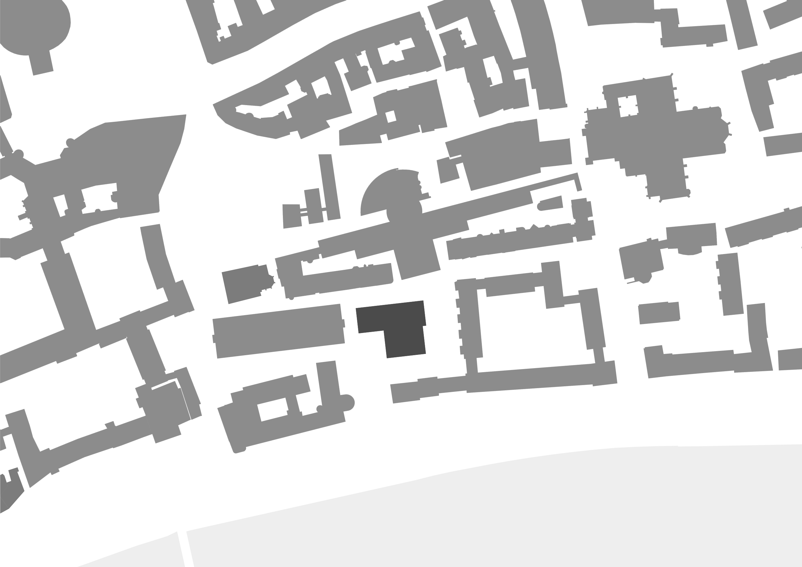
Das neue „Haus der Frankfurter Jugendkirchenmusik“ zeigt sich als integrativer Stadtbaustein im Herzen der Frankfurter Altstadt. Als „Schlussstein“ konzipiert bildet es einen wohltuenden räumlichen Abschluss des Saalhofs im Osten und ermöglicht eine qualitätvolle, öffentliche und zudem barrierefreie Durchwegung des Quartiers. Mit der städtebaulichen Setzung des Erweiterungsbaus entsteht ein kleines Quartiersplätzchen: der Saalhofplatz. Er formuliert ein in den Stadtraum eingebundenes, gut auffindbares Entrée von hoher Aufenthaltsqualität. Die Evangelische Akademie im Westen und das neue „Haus der Frankfurter Jugendkirchenmusik“ spannen zukünftig spürbar den Saalhof als öffentlichen Raum auf.

Die Maßstäbe einer ganzheitlich gedachten Nachhaltigkeit als sichtbares Zeichen für die Bewahrung der Schöpfung werden zum Gestaltungsgrundsatz: Die Wieder- und Weiterverwendung von Bausubstanz und Baumaterialen trägt hierbei zu einem verringerten Ressourcenverbrauch bei. Der harmonischen Fügung und Ausgestaltung wird hierbei besondere Beachtung geschenkt. Durch die klare Volumetrie, die sich verschränkende Dachform und die fein ausdifferenzierte Materialisierung entsteht ein kraftvolles und identitätsstiftendes Ganzes. Die Wahrung von Bausubstanz und Bäumen sowie des denkmalgeschützen Petrusmosaiks folgt einem Geist des Weiterbauens und Weiterdenkens des bestehenden Ortes.

Wettbewerb: Anerkennung, 2025 (Axel Frühauf)

Architekten:
meck architekten gmbh
Axel Frühauf

Mitarbeit:
Iryna Krystak, Markus Maier, Wilko Schmidt, Thomas Zaspel

Tragwerk:
Sailer Stepan Tragwerksteam München GmbH

Bildung und Erziehung, Wettbewerbe