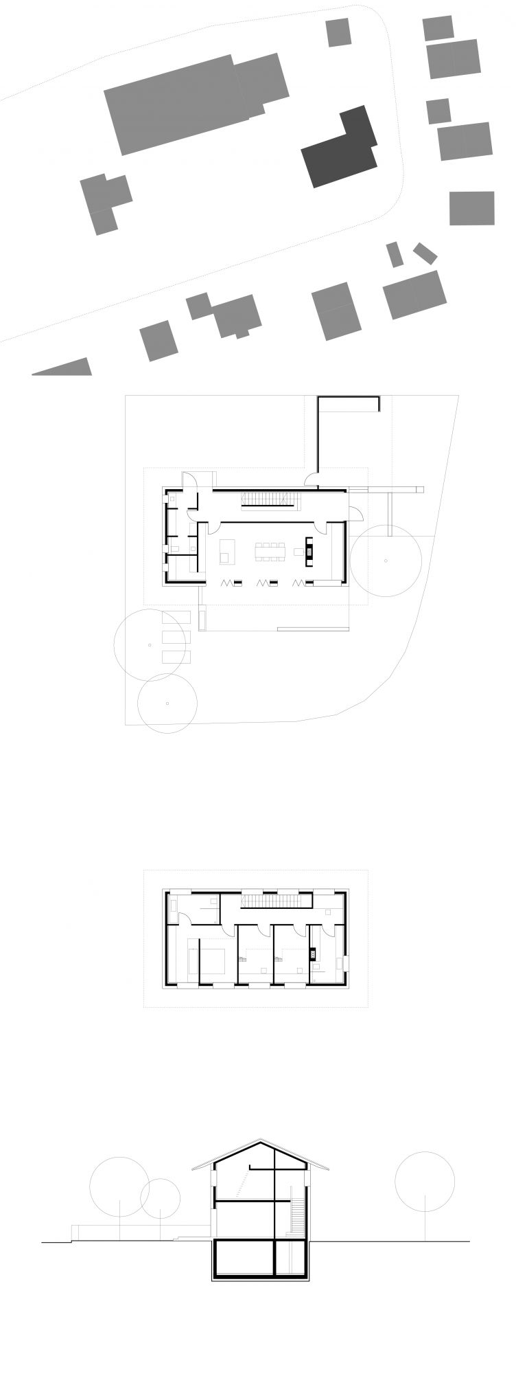
Wohnhaus Göggenhofen, Aying, 2023

Gelassen steht es da und will nicht mehr sein, als es ist: ein Haus. Ohne Zierrat, ohne Schnickschnack. Mit einem ziegelgedeckten, roten Satteldach und ausreichend Dachüberstand respektiert es die Bauvorschriften der oberbayrischen Gemeinde. Der Familie, die darin wohnt, gibt das Haus Weite und Geborgenheit, es schafft Nischen für Rückzug und Orte für Begegnung.

Fenster, Türen, Dielenböden und Einbauten sind aus robustem Eichenholz gefertigt, im Erdgeschoss ist innen und außen ein bodenständiger Grund in Stein gegossen. Den erlebbaren Sockel für die oberen Geschosse in Holzbauweise bildet das Kellergeschoss aus Stahlbeton. Im Erdgeschoss öffnet sich um Küche und Ofen ein lichter Freiraum für Gemeinschaft und Zusammensein.

In den darüber liegenden Räumen im Obergeschoss findet jeder den Rückzug, den er braucht, für die Kinder reicht das bis direkt unter das Dach. Die Terrasse und der Garten sind nach Süden zur Sonne hin ausgerichtet, innen und außen im fließenden Übergang. Im Norden bilden Wohnhaus und Carport mit dem Bestandshaus einen geschützten, schattigen Hof zum Spielen und zum Aufenthalt an heißen Tagen.

Eine Photovoltaikanlage und eine Luftwärmepumpe in Verbindung mit Holzpellets für die Spitzenlasten in der Heizperiode unterstützen einen energieoptimierten und klimaneutralen Betrieb.

Planungsbeginn: 2019

Fertigstellung: 2023

Architekten:
meck architekten gmbh
Andreas Meck †, Axel Frühauf

Mitarbeit:
Marie Bauer, Franziska Schidlo

Fotografie:
Florian Holzherr

Freianlage:
meck architekten gmbh

Wohnen, Gebaut, Geplant